COLLEGE OF VETERINARY MEDICINE CLASSROOM

Iowa State University, Ames, Iowa

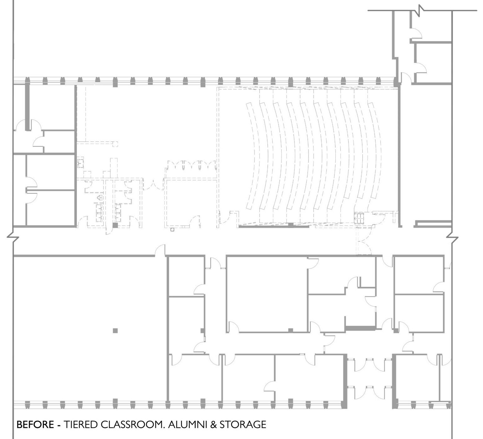
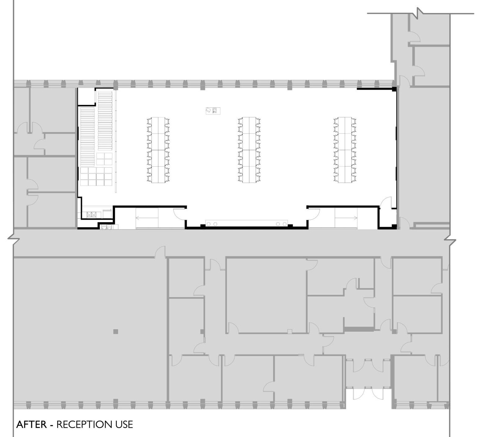
 Capacity, flexibility, and daylight were the driving factors for this forward-thinking classroom on Iowa State University’s Veterinary Medicine Campus. What was previously filled with tiered seating, is now a technology-enabled flat-floor classroom. The space now allows for lectures, student collaboration, and receptions.  Acoustic treatments integrate ISU’s signature cardinal color while providing important acoustical qualities for a lecture space. New translucent glass classroom entries call attention to the new space while also blending into the existing building.